tunisie
Bienvenue sur Annonces Tunisie. > Vous n'êtes pas connecté.

Appart. 3 pièces - 50 m² -   à La Marsa -  700 Dinars

Bureau au lac1 a partager architecte graphiste

Détail de l'annonce

Nature

Offres - Partage

Localisation

Tunisie - Tunis - La Marsa - Berge Du Lac

Type du bien

Appart. 3 pièces

Adresse

les berges du lac i _passage du lac maracaibo

Surface

50 m² 

Prix

700 Dinar Tunisien (TND)  Convertir

Description du bien

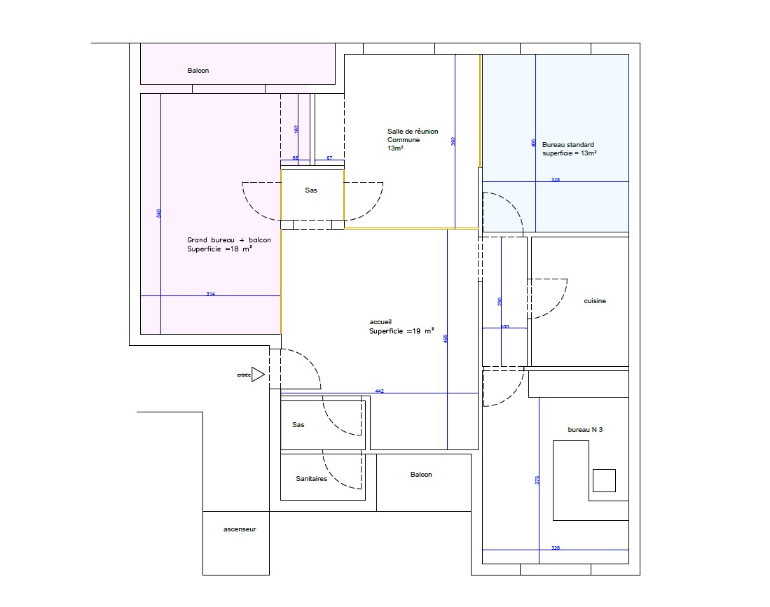
architecte d'intérieur cherche à partager son bureau avec un(e) architecte et un(e) graphiste dans une logique de synergie créative et d’échange professionnel enrichissant.
emplacement : quartier d'affaires tunis lac 1 à côté du siège de total et hôtel movenpick.

description de l’espace :
3 bureaux individuels
1 salle de réunion commune
1 espace accueil / espace commun équipe
1 kitchenette
1 wc
bureau lumineux, équipé de climatisation et chauffage et wifi. 3eme étage avec ascenseur
profil recherché :
l’objectif est de créer un environnement stimulant, basé sur la complémentarité des compétences et la bonne entente humaine.
le choix des colocataires se fera donc sur la base d’un profil compatible et sérieux, dans un esprit de respect mutuel et de collaboration bienveillante.
tarifs mensuels :
bureau standard : 700 dt
grand bureau avec balcon privatif : 900 dt
ce que le tarif comprend : loyer + internet haut débit + frais de ménage hebdomadaire + consommables partagés + charges de syndic

Dernière mise à jour :

01/10/2025

Pour contacter l’annonceur
Contactez le directement par téléphone* au :
 +216 22 622 056 -  +216 22 622 056
Contactez le par l’intermédiaire du site en cliquant sur le lien ci-dessous :
(L’annonceur recevra instantanément une alerte dans sa boite mail)
Répondre
Signaler une erreur ou un problème sur cette annonce
Signaler
Les Photos
La Marsa Berge Du Lac Partage Appart. 3 pièces Bureau au lac1 a partager architecte graphiste
La Marsa Berge Du Lac Partage Appart. 3 pièces Bureau au lac1 a partager architecte graphiste
La Marsa Berge Du Lac Partage Appart. 3 pièces Bureau au lac1 a partager architecte graphiste
La Marsa Berge Du Lac Partage Appart. 3 pièces Bureau au lac1 a partager architecte graphiste
  Partage Appart. 3 pièces Bureau au lac1 a partager architecte graphiste La Marsa  
cache : 0 min
Droits de reproduction et de diffusion réservés Copyright © 2010 annonces-tunisie.net, Tous droits réservés
annonces tunisie, petites annonces tunisie, tunisie immobilier, tunisie annonces, passer annonce gratuite, annonces algeriennes, petites annonces, passer une annonce, annonces immobilier, location, vente , achat, maison, appartement, louer, vendre, acheter, location, annonces ariana, petites annonces ariana, immobilier, maison, locations de vacances en tunisie, petites annonces tunisie, tunisie annonces, site tunisien pour les petites annonces, sites tunisiens