tunisie
Bienvenue sur Annonces Tunisie. > Vous n'êtes pas connecté.

Terrain nu - 12 425 m² -   à Douar Hicher - 2 236 500 Dinars

Terrain polyfonctionnelle promoteur immobilier

Détail de l'annonce

Nature

Offres - Terrain

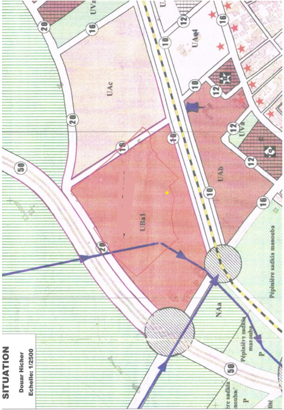
Localisation

Tunisie - Manouba - Douar Hicher - Cite Khaled Ibn El Walid

Type du bien

Terrain nu

Adresse

cite khaled ibn walid, manouba

Surface

12 425 m² 

Prix

2 236 500 Dinar Tunisien (TND)  Convertir

Description du bien

a vendre terrain à douar hicher gouvernorat de la manouba, convient pour projet foprolos ou premier logement.
zone stratégique juxtaposée à la nouvelle route x20 et en face de la future station du métro rapide (rfr ligne d, station khaled ibn walid), offrant une accessibilité exceptionnelle vers le grand tunis et un fort potentiel de développement urbain et économique.
superficies : 12 425 m², titre foncier individuel
caractéristiques urbanistiques zone uba1
zone polyfonctionnelle de forte densité, adaptée à des projets résidentiels, tertiaires ou mixtes.
coefficient d’occupation du sol (cos) :
0,50 : constructions de type collectif isolé
0,60 : constructions de type collectif jumelé
0,70 : constructions de type collectif en bande continue
0,50 : opérations d’ensemble
coefficient d’utilisation du sol (cuf) :
2,20 : constructions de type collectif isolé
2,60 : constructions de type collectif jumelé
3,20 : constructions de type collectif en bande continue
2,20 : opérations d’ensemble
hauteur maximale : 20 m (r+4)
joignable par tel ou whatsapp : +216 25 399 299

Dernière mise à jour :

26/01/2026

Pour contacter l’annonceur
Contactez le directement par téléphone* au :
 +216 25 399 299
Contactez le par l’intermédiaire du site en cliquant sur le lien ci-dessous :
(L’annonceur recevra instantanément une alerte dans sa boite mail)
Répondre
Signaler une erreur ou un problème sur cette annonce
Signaler
Les Photos
Douar Hicher Cite Khaled Ibn El Walid Terrain Terrain nu Terrain polyfonctionnelle promoteur immobilier
Douar Hicher Cite Khaled Ibn El Walid Terrain Terrain nu Terrain polyfonctionnelle promoteur immobilier
Douar Hicher Cite Khaled Ibn El Walid Terrain Terrain nu Terrain polyfonctionnelle promoteur immobilier
  Terrain Terrain nu Terrain polyfonctionnelle promoteur immobilier Douar Hicher  
cache : 0 min
Droits de reproduction et de diffusion réservés Copyright © 2010 annonces-tunisie.net, Tous droits réservés
annonces tunisie, petites annonces tunisie, tunisie immobilier, tunisie annonces, passer annonce gratuite, annonces algeriennes, petites annonces, passer une annonce, annonces immobilier, location, vente , achat, maison, appartement, louer, vendre, acheter, location, annonces ariana, petites annonces ariana, immobilier, maison, locations de vacances en tunisie, petites annonces tunisie, tunisie annonces, site tunisien pour les petites annonces, sites tunisiens